Die vielleicht „grünste“ Seite, die der Baustoff Beton zu bieten hat, zeigt sich im neuen Hall Haus. Der ansprechende Bürokomplex in Passivhausqualität setzt als wartungsarmer Massivbau am Haller Brockenweg bewusst ein architektonisches Zeichen und fügt sich dabei sehr harmonisch in das historisch gewachsene Umfeld ein.
Von Weitem betrachtet wirkt das lang gezogene Gebäude zunächst beinahe weich. Sofort ins Auge fallen neben der klaren Linienführung die rhythmisch versetzten Einzelfenster, die die oberen Etagen des Hauses mit Licht durchfluten und gleichzeitig eine unverkennbare Signatur hinterlassen. Tritt man näher heran, zeigt sich das Geheimnis des Gebäudes direkt an der Oberfläche: Mit der farblich sehr fein abgestimmten Fassade wurde die historische Bautechnik des Stampfbetonmauerwerkes neu belebt und ins moderne Zeitalter überführt, was dem Gebäude einen sehr eigenständigen und ansprechenden Grundcharakter verleiht.
„Hier haben wir das Beste aus über 80 Jahren Erfahrung in einem Gebäude realisiert“
(Firma Fröschl)
HIGHLIGHTS
Im Hall Haus lohnt es sich bei den Details genauer hinzusehen, denn hier wurde eine sehr hochwertige und durchdachte Arbeitsatmosphäre geschaffen, die moderne Standards erfüllt und dabei gleichzeitig viel Komfort bietet.
Die Außenfenster wurden Richtung Osten, Westen und Norden ausgerichtet und verleihen den dahinter befindlichen Büroeinheiten ein sehr helles Arbeitsumfeld. Durch verglaste Innenhöfe gelangt blendfreies Tageslicht in die Gänge und Büros. Gleichzeitig genießt man in den Aufenthalts-, Besprechungs- und Seminarräumen neben ganztägig guten Lichtverhältnissen schöne Aussichten auf die begrünten Innenhöfe.
Auch in akustischer und vor allem in thermischer Hinsicht wurde in den Büroräumlichkeiten ein sehr komfortables Raum- und Arbeitsklima sichergestellt. Mittels Betonkernaktivierung in den Decken werden alle Räume im Sommer wie im Winter auf einer konstant behaglichen Zimmertemperatur gehalten. Und das ganz ohne Einsatz einer Klimaanlage. Dazu gewährleisten stoffüberzogene Holz- Hanfplatten und eigene Akustikelemente ein schallisoliertes Telefonieren und Besprechen, was das Arbeiten im Hall Haus gleich noch angenehmer macht.






m2 Mietfläche
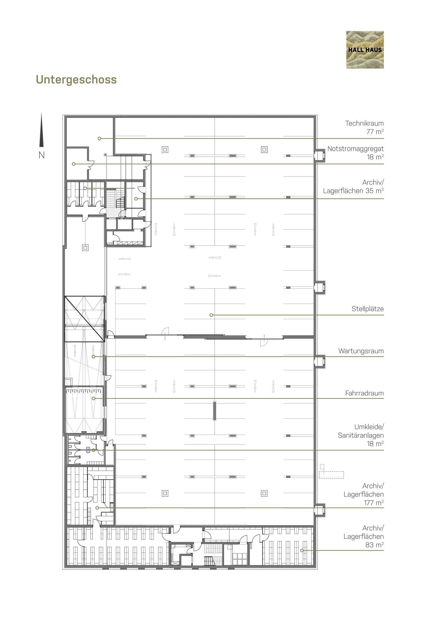
m2 Lagerfläche
Tiefgaragenplätze
Ausführung der Details
- Nachhaltige Bauweise
- Funktionales Bürodesign
- Optimale Arbeitsumgebung
- Hochwertige EDV-Infrastruktur
- Ergonomisches Beleuchtungskonzept
- Downlights in Korridoren
- Optionale leichte Trennwände/Glaswände
- Hochwertige Bodenbeläge
- Großzügige, begrünte Innenhöfe
- Tee- und Kaffeeküchen
- Besprechungsräume
Klimatisierung, Heizung und Kühlung
- 22 KWh/m2/Jahr Energieeinsatz für Heizen/Kühlen
- Einsatz erneuerbarer Energie durch Grundwasserwärmetauscher für Heizen/Kühlen
- Heizung und Kühlung erfolgt durch Decken-Betonkernaktivierung
- Hocheffizienter Sonnenschutz
- Öffenbare Fenster
Sicherheit
- Zugangskontroll- & Sicherheitssysteme Alarmsysteme
- Alarmsysteme
- Notstromversorgung
- Sicherheitsdienst
GESCHOSSE
Angepasst an die variablen und qualitätsorientierten Herausforderungen des modernen Berufs- und Büroalltags wurden sämtliche Büroräume sehr flexibel und individuell adaptierbar konzipiert. Je nach Wunsch und Anspruch sind Bürolösungen von der Einzel- bis zur Vierfachbelegung in nahezu allen Größenvarianten möglich.
Erd-
Geschoss
Eingang
Über einen großzügig dimensionierten Eingangsbereich gelangt man ins Erdgeschoss des Hauses. Von hier aus führt das Stiegenhaus und ein barrierefreier Aufzug in die oberen Stockwerke des Gebäudes.
m2
Mietbare Gesamtfläche
Büroräume
Mietbar nur in Kombination mit OG 1 oder OG 2
Ober-
Geschoss
01
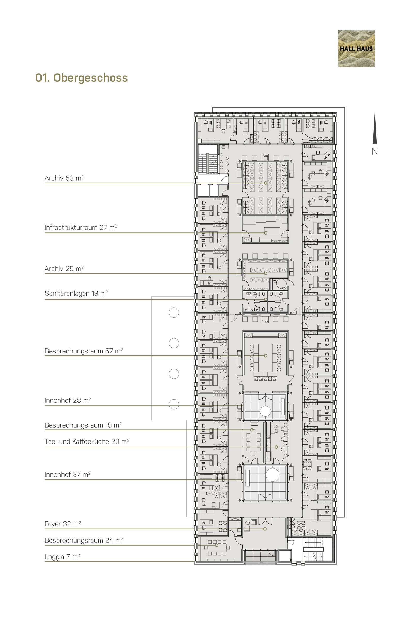
Das 1. Obergeschoss bietet mit rund 1.150 m2 Gesamtfläche vielfältige Möglichkeiten für jedes Unternehmen. Sämtliche Büroeinheiten können flexibel gestaltet und variabel belegt werden und bieten einer bis vier Personen viel Platz und Komfort zum Arbeiten. Eigens ausgewiesene und mit Zirbenholz verkleidete Kopierstationen in den Gängen garantieren dazu ein sehr ruhiges Arbeitsklima. Und großzügig angelegte Archivräume geben ausreichend Platz.
Das Herzstück dieser Etage bildet ein heller und funktional gestalteter Besprechungsraum mit direktem Zugang zum Innenhof.
m2
Mietbare Gesamtfläche
m2
Terrasse
m2
Loggia nach Süden ausgerichtet
Büroräume
Ober-
Geschoss
02
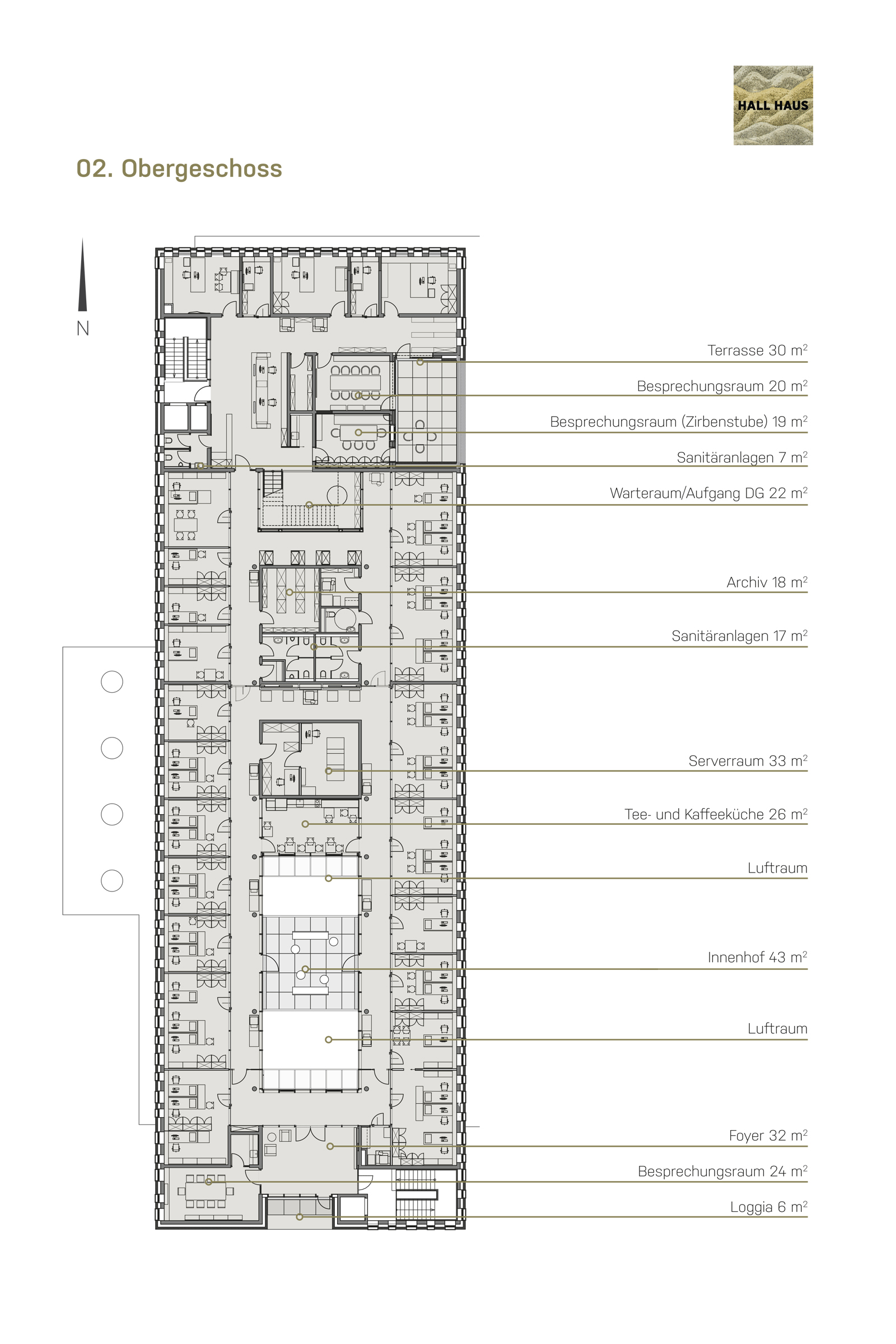
Mit sehr viel Licht empfängt das 2. Obergeschoss seine Gäste und präsentiert sich dabei sehr einladend mit mehreren großen Büros, einer Teeküche und weiteren Besprechungsräumen. Wie im Stock darunter befindet sich auch hier ein direkt zugänglicher offener Innenhof, der für ein helles Arbeitsklima im Inneren sorgt. Mit einer echten „Zirbenstube“ steht in dieser Etage ein außergewöhnlicher Besprechungsraum zur Verfügung.
m2
Mietbare Gesamtfläche
m2
Terrasse
m2
Loggia nach Süden ausgerichtet
Büroräume
Dach-
Geschoss
Panorama
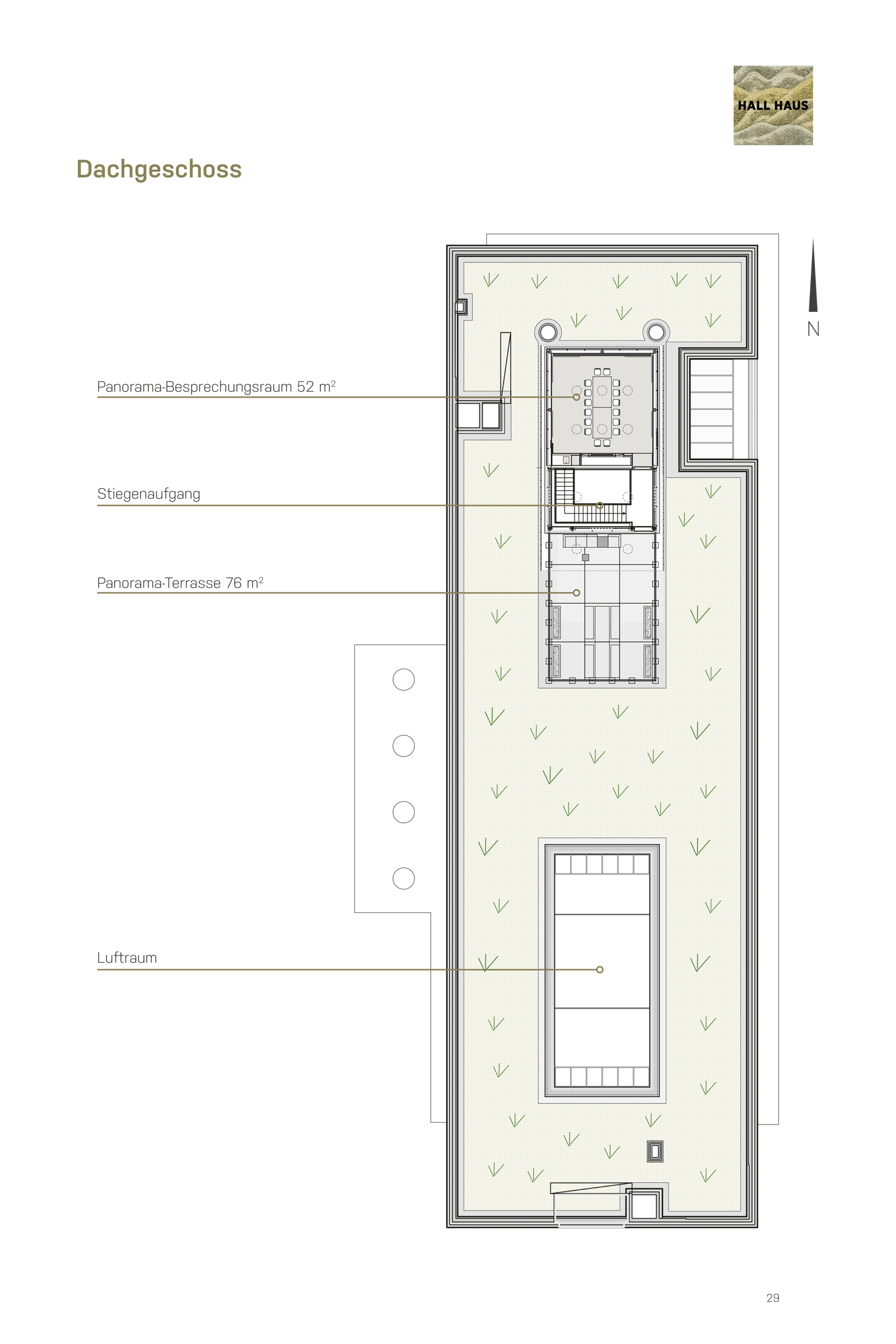
Das großzügig angelegte und exklusive konzipierte Dachgeschoss ist zweifelsfrei das „Schmuckkästchen“ des Hauses.
Hier genießt man im repräsentativen Besprechungsraum mit Dachterrasse einen außergewöhnlichen 360-Grad- Rundumblick auf die imposante Tiroler Bergwelt.
m2
Panorama-
Besprechungsraum
m2
360° Dachterrasse
Das Dachgeschoss ist der OG 2 Mietfläche zugeordnet
Bürotypen
Einteilung
Flexibilität
Angepasst an die variablen und qualitätsorientierten Herausforderungen des modernen Berufs- und Büroalltags wurden sämtliche Büroräume sehr flexibel und individuell adaptierbar konzipiert. Je nach Wunsch und Anspruch sind Bürolösungen von der Einzel- bis zur Vierfachbelegung in nahezu allen Größenvarianten möglich.
Österreich
Tirol
Hall
Tirol ist die Heimat des alpinen Lifestyles und bietet als Herz der Alpen neben touristischen Vorzügen auch als Firmenstandort große Vorteile. Hall selbst wiederum vereint die positiven Aspekte aus der Nähe zu Innsbruck mit der eigenen erfolgreichen Historie als Salzstadt und hat sich als ideale Verbindung aus urbaner Infrastruktur und ländlichem Erholungsort etabliert. Diese Kombination eröffnet gerade für eine Unternehmensniederlassung im Hall Haus ein ungeahntes Potenzial und gibt Firmen vielversprechende Perspektiven, um am Wirtschaftsstandort Tirol mitzuwirken.
Hall in Tirol nutzt als Universitäts-, Gerichts-, Wirtschafts- und Klinikstandort eine ausgezeichnete Anbindung an das öffentliche Nahverkehrsnetz und punktet durch zwei direkte Autobahnanschlüsse mit schneller Erreichbarkeit. Darüber hinaus stehen rund um die Stadt attraktive und sehr vielseitige Freizeitmöglichkeiten zur Verfügung. Auch die Dinge des täglichen Bedarfs werden ganz unmittelbar abgedeckt. Denn neben vielen Einkaufsmöglichkeiten in der Stadt greifen Mieter gleich direkt im Haus auf die Vorzüge eines Lebensmittelmarkts und einer Apotheke zurück.
Verkehrs-
Anbindung
Lage
Haben wir
ihr Interesse
geweckt?
Realbau GmbH
Brockenweg 2, 6060 Hall in Tirol
T: 05223 / 90909
office@realbau.at
hallhaus.at
























